33 250,00 € cc
184,72 € / m²

Local commercial

Local commercial

75003 Paris 3ème
0 pièce 180 m2
Référence : 55278
33 250,00 € cc
184,72 € / m²

Conditions de location

33 250,00 € / mois cc

Charges
27 000,00 €
Dépôt de garantie
18 750,00 €
Honoraires agence
Non disponible
Disponibilité
Dès maintenant
Durée du bail

Informations

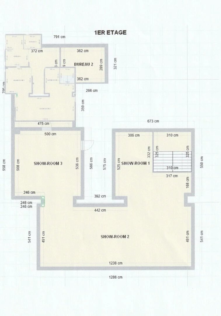
Étage : 1

Description

Local commercial Rue du Temple/, passage ste Avoie en plein coeur du 3eme arrondissement de paris. Dans un environnement haut de gamme et dynamique, Odeon immobilier vous propose à la location une surface commerciale d'environ 180 m2 (mesurage en cours) Situés au premier étage d'un bel immeuble ancien, cet espace offre plusieurs possibilités d'aménagement et peut être séparé en deux lots. L'entrée se fait par le prestigieux passage Ste-Avoie. Lieux pouvant convenir à tous types d'activités, idéal pour y installer des bureaux, un cabinet d'avocats, un cabinet dentaire, un show-room ou encore une salle de sport.. Travaux d'aménagement à prévoir Informations complémentaires et visites: Frédéric: 0624728110 Frederic GODRON (EI) Agent Commercial - Numéro RSAC : - .
Mis à jour le 07/01/2026

Relevés techniques

Diagnostic de performance énergétique :

Production eau chaude

Production chauffage


Les informations sur les risques auxquels ce bien est exposé sont disponibles sur le site Géorisques : www.georisques.gouv.fr