422 500 €
1 623 € / m²

Immeuble avec bureaux et 2 appartements loués - quartier Grammon

Immeuble avec bureaux et 2 appartements loués - quartier Grammon

111 Rue Michelet 37000 Tours
16 pièces 260.38 m2 Exclusivité
Référence : 56567
422 500 €
1 623 € / m²

Conditions de vente

422 500 €

Charges immeuble
Non renseignée
Taxe foncière
Non renseignée
Honoraires TTC
22 519 € *

* Soit 399 981,00 € + honoraires de 5,63% TTC À la charge de l'acquéreur

Informations

Description

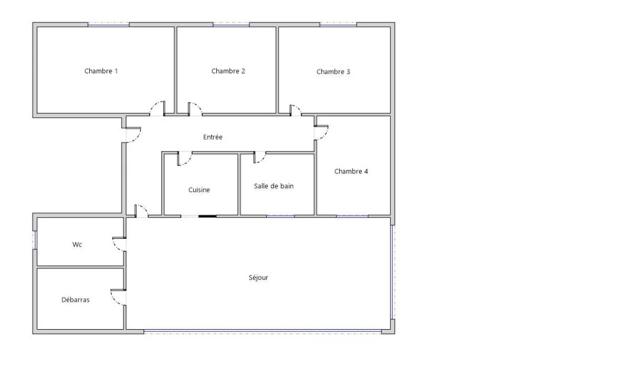
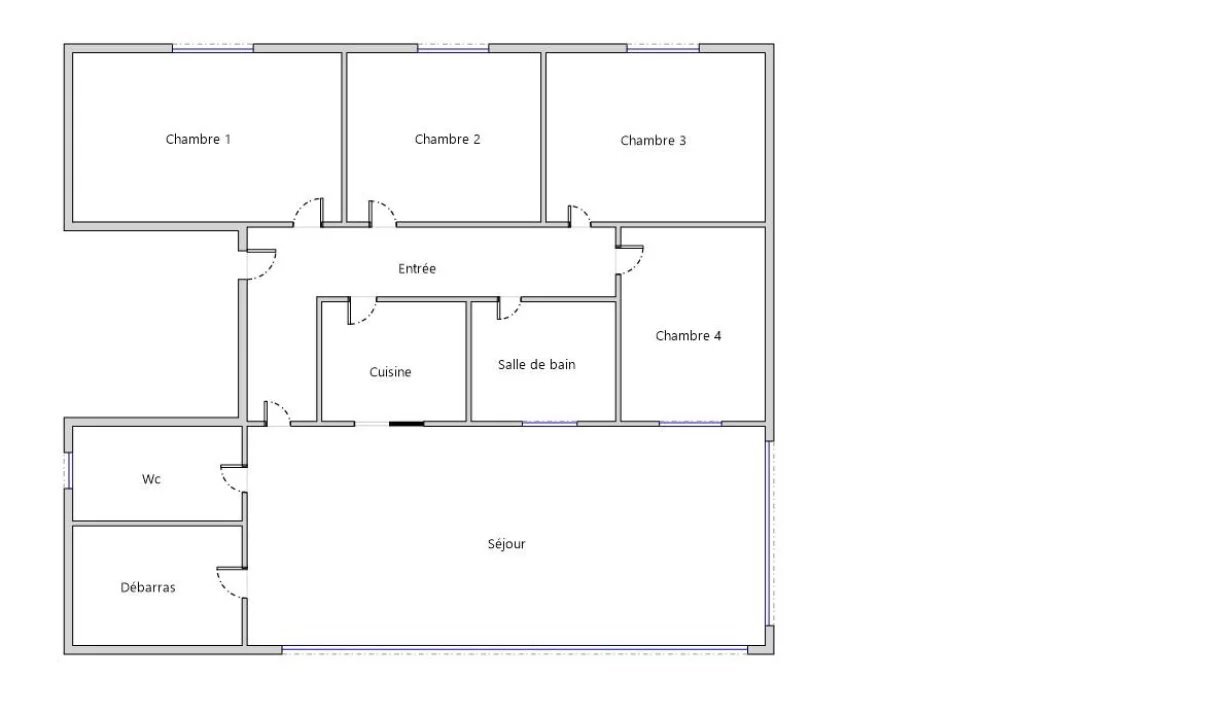
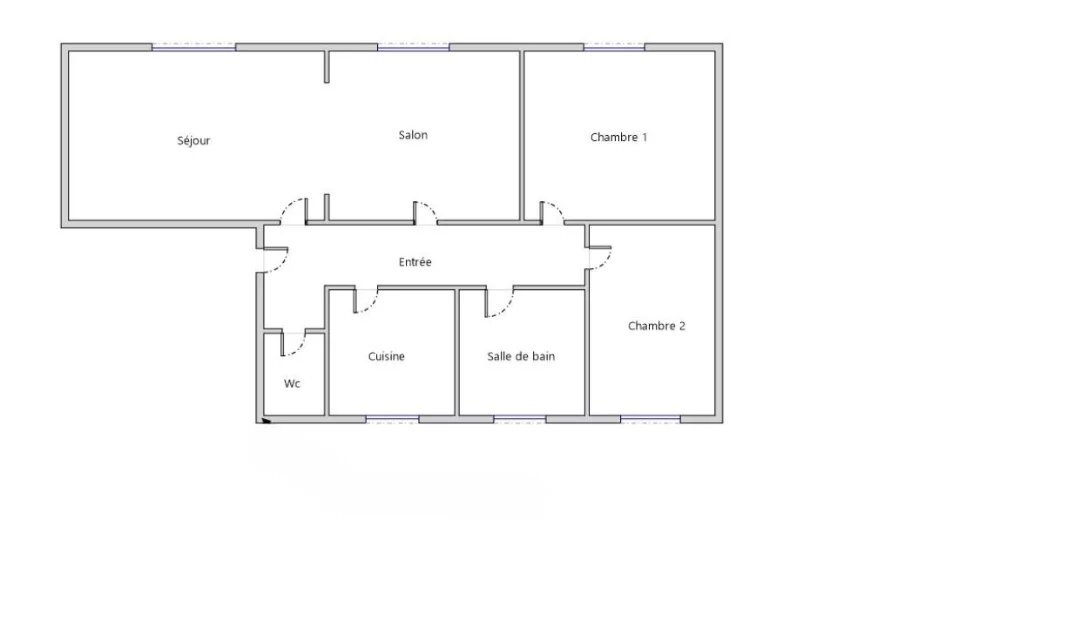
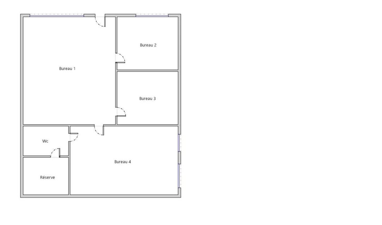
Immeuble avec bureaux et 2 appartements loués - quartier Grammont à Tours Tours centre quartier Grammont Immeuble de rapport composé d'un local commercial en RdC de 90 m², Au premier étage, un grand T6 de 103 m², Et au deuxième étage, un appartement T3 de 67 m². L'ensemble est loué et nécessite une restauration. Les informations sur les risques auxquels ce bien est exposé sont disponibles sur le site Géorisques : www.georisques.gouv.fr
Mis à jour le 07/01/2026

Équipements

Fibre

Relevés techniques

Orientation
Ouest

Diagnostic de performance énergétique :

Production eau chaude

Production chauffage


Les informations sur les risques auxquels ce bien est exposé sont disponibles sur le site Géorisques : www.georisques.gouv.fr