350 700 €
4 999 € / m²

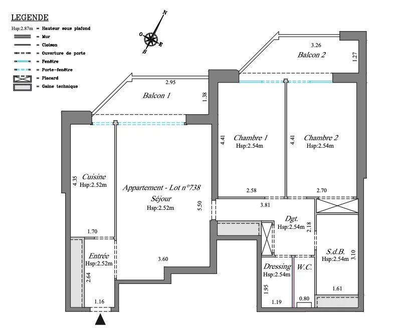
Appartement T3 de 70,15m2 avec 2 balcons

Appartement T3 de 70,15m2 avec 2 balcons

Bécon 92400 Courbevoie
3 pièces 70.15 m2
Référence : 76919
350 700 €
4 999 € / m²

Conditions de vente

350 700 €

Charges immeuble
Non renseignée
Taxe foncière
Non renseignée

Informations

2 chambres
Étage : 4
1 salle d'eau
1 WC
Bâtiment de : 10 étages
Ascenseur
Balcon
Construit
Vue exceptionelle

Description

Appartement T3 de 70,15m2 avec 2 balcons Proche de La Défense et de Paris, Courbevoie est une commune dynamique et moderne. Ce bien est idéalement situé à moins de 10 minutes à pied de la gare de Bécon-les-Bruyères. Ce bien se compose : - d'une entrée, - d'un beau séjour de 21m2, - d'une cuisine séparée de plus 7m2 - de deux chambres, - d'un dressing, 2 balcons donnent de la luminosité à cet appartement. Il est vendu avec place de parking et cave. Ce bien en nue propriété a une durée d'usufruit de 17 ans. Pour plus d'information, merci de bien vouloir nous contacter directement. - d'une salle de bains
Mis à jour le 07/01/2026

Relevés techniques

Orientation
Nord

Diagnostic de performance énergétique :

Production eau chaude

Production chauffage


Les informations sur les risques auxquels ce bien est exposé sont disponibles sur le site Géorisques : www.georisques.gouv.fr