402 000 €
4 664 € / m²

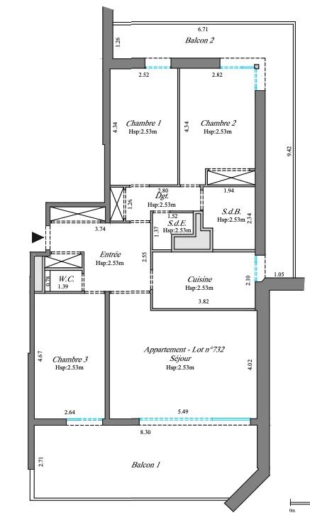
Appartement T4 de 86,20m2 avec 2 balcons

Appartement T4 de 86,20m2 avec 2 balcons

Bécon 92400 Courbevoie
4 pièces 86.2 m2
Référence : 76920
402 000 €
4 664 € / m²

Conditions de vente

402 000 €

Charges immeuble
Non renseignée
Taxe foncière
Non renseignée

Informations

3 chambres
Étage : 2
1 salle d'eau
1 douche
1 WC
Bâtiment de : 10 étages
Ascenseur
Balcon
Construit
Vue exceptionelle

Description

Appartement T4 de 86,20m2 avec 2 balcons Proche de La Défense et de Paris, Courbevoie est une commune dynamique et moderne. Ce bien est idéalement situé à moins de 10 minutes à pied de la gare de Bécon-les-Bruyères. Ce bien se compose : - d'une entrée, - d'un beau séjour de 23m2, - d'une cuisine séparée de plus 8m2 - de trois chambres, - d'une salle d'eau et d'une salle de bains 2 balcons donnent de la luminosité à cet appartement. Il est vendu avec place de parking et cave. Ce bien en nue propriété a une durée d'usufruit de 17 ans. Pour plus d'information, merci de bien vouloir nous contacter directement. Merci de noter que nos photos sont non contractuelles
Mis à jour le 07/01/2026

Relevés techniques

Orientation
Sud

Diagnostic de performance énergétique :

Production eau chaude

Production chauffage


Les informations sur les risques auxquels ce bien est exposé sont disponibles sur le site Géorisques : www.georisques.gouv.fr