395 080 €
4 528 € / m²

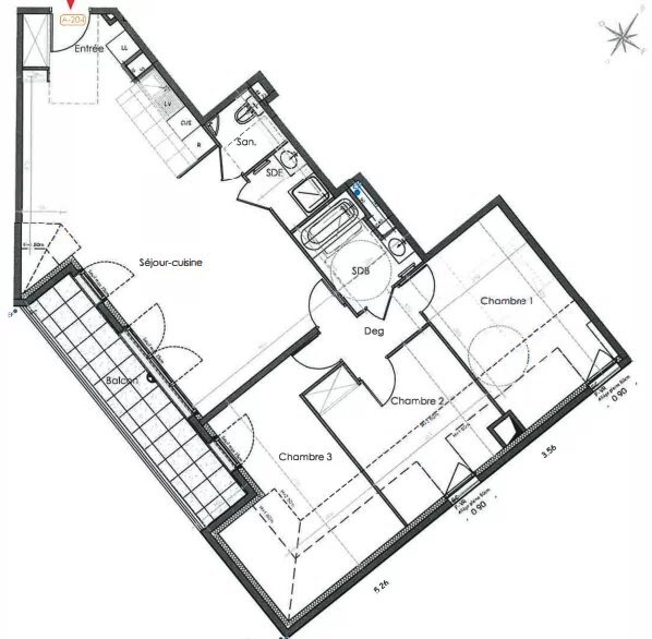
Spécial investisseur - Appartement T4 de 87 m2 à Marly le Roi

Spécial investisseur - Appartement T4 de 87 m2 à Marly le Roi

78160 Marly-le-Roi
4 pièces 87.25 m2
Référence : 81235
395 080 €
4 528 € / m²

Conditions de vente

395 080 €

Charges immeuble
Non renseignée
Taxe foncière
Non renseignée

Informations

3 chambres
Étage : 2
1 salle d'eau
1 douche
1 WC
Bâtiment de : 3 étages
Ascenseur
Balcon
Construit
Vue exceptionelle

Description

Spécial investisseur - Appartement T4 de 87 m2 à Marly le Roi Idéalement placée au coeur de Marly le Roi, à seulement 900 mètres de la gare et à proximité des commerces. Cet appartement en Nue Propriété se compose : - d'une belle entrée, - d'un espace de vie : Séjour/cuisine de plus de 38m2 - de trois chambres, - d'une salle de bains et d'une salle de douche - et un balcon de 10m2 Le prix affiché est en TVA 10% (voir si éligibilité). Un parking est disponible en supplément à hauteur de 12 800euros. Pour plus d'information, merci de bien vouloir nous contacter directement.
Mis à jour le 07/01/2026

Relevés techniques

Orientation
Sud

Diagnostic de performance énergétique :

Production eau chaude

Production chauffage


Les informations sur les risques auxquels ce bien est exposé sont disponibles sur le site Géorisques : www.georisques.gouv.fr