213 125 €
3 891 € / m²

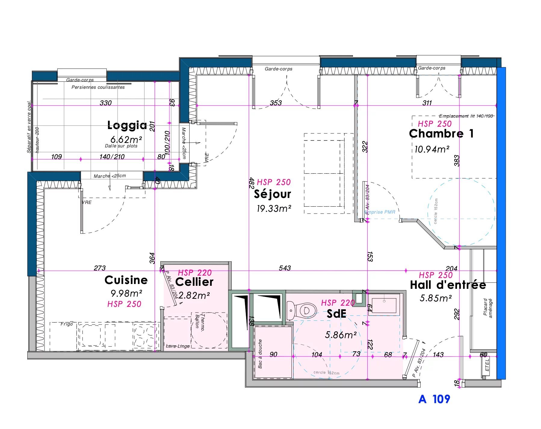
Appartement T2 de 54,78 avec loggia

Appartement T2 de 54,78 avec loggia

17310 Saint-Pierre-d'Oléron
2 pièces 54.78 m2 Exclusivité
Référence : 82086
213 125 €
3 891 € / m²

Conditions de vente

213 125 €

Charges immeuble
Non renseignée
Taxe foncière
Non renseignée

Informations

1 chambre
Étage : 1
1 douche
Ascenseur
Vue exceptionelle

Description

Appartement T2 de 54,78 avec loggia Idéalement placé sur l'ile d'Oléron, dans une résidence moderne. Son centre-ville, ses ruelles piétonnes, ses marchés et ses nombreuses boutiques en font un lieu de villégiature très apprécié. Exclusivité : soit pour y habiter ou soit pour y investir avec des conditions exceptionnelles (LMNP, LMP) Cet appartement se compose : - d'une entrée - d'un cellier - d'un séjour - d'une cuisine - d'une salle d'eau - d'une chambre - d'une loggia. Pour plus d'information, merci de nous contacter directement.
Mis à jour le 07/01/2026

Relevés techniques

Orientation
Nord

Diagnostic de performance énergétique :

Production eau chaude

Production chauffage


Les informations sur les risques auxquels ce bien est exposé sont disponibles sur le site Géorisques : www.georisques.gouv.fr