257 200 €
5 113 € / m²

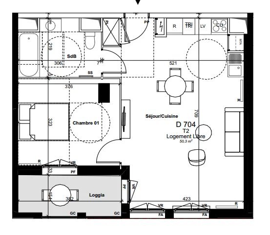
Appartement T2 avec Loggia

Appartement T2 avec Loggia

33800 Bordeaux
2 pièces 50.3 m2
Référence : 82090
257 200 €
5 113 € / m²

Conditions de vente

257 200 €

Charges immeuble
Non renseignée
Taxe foncière
Non renseignée

Informations

1 chambre
Étage : 7
1 salle d'eau
Bâtiment de : 7 étages
Ascenseur
Vue exceptionelle

Description

Appartement T2 avec Loggia Cet appartement est situé proche des quais et a deux pas du centre ville historique de Bordeaux. Cet appartement se compose : - d'un grand espace de vie séjour/cuisine de plus de 32m2, - d'une belle chambre de 11,8m2 - d'une salle de bains, - d'une loggia de plus de 6,2m2. Cet appartement est vendu avec une place de parking. Pour plus d'information, merci de nous contacter directement.
Mis à jour le 07/01/2026

Relevés techniques

Orientation
Ouest

Diagnostic de performance énergétique :

Production eau chaude

Production chauffage


Les informations sur les risques auxquels ce bien est exposé sont disponibles sur le site Géorisques : www.georisques.gouv.fr