725 000 €
8 590 € / m²

Appartement T4 - Duplex - 87,04m2

Appartement T4 - Duplex - 87,04m2

94270 Le Kremlin-Bicêtre
4 pièces 84.4 m2
Référence : 94KREMPRIMAKARAC22
725 000 €
8 590 € / m²

Conditions de vente

725 000 €

Taxe foncière
Non renseignée

Informations

3 chambres
Étage : 2
2 salles d'eau
2 WCs
Bâtiment de : 4 étages
Ascenseur
Balcon
Mono-propriété

Description

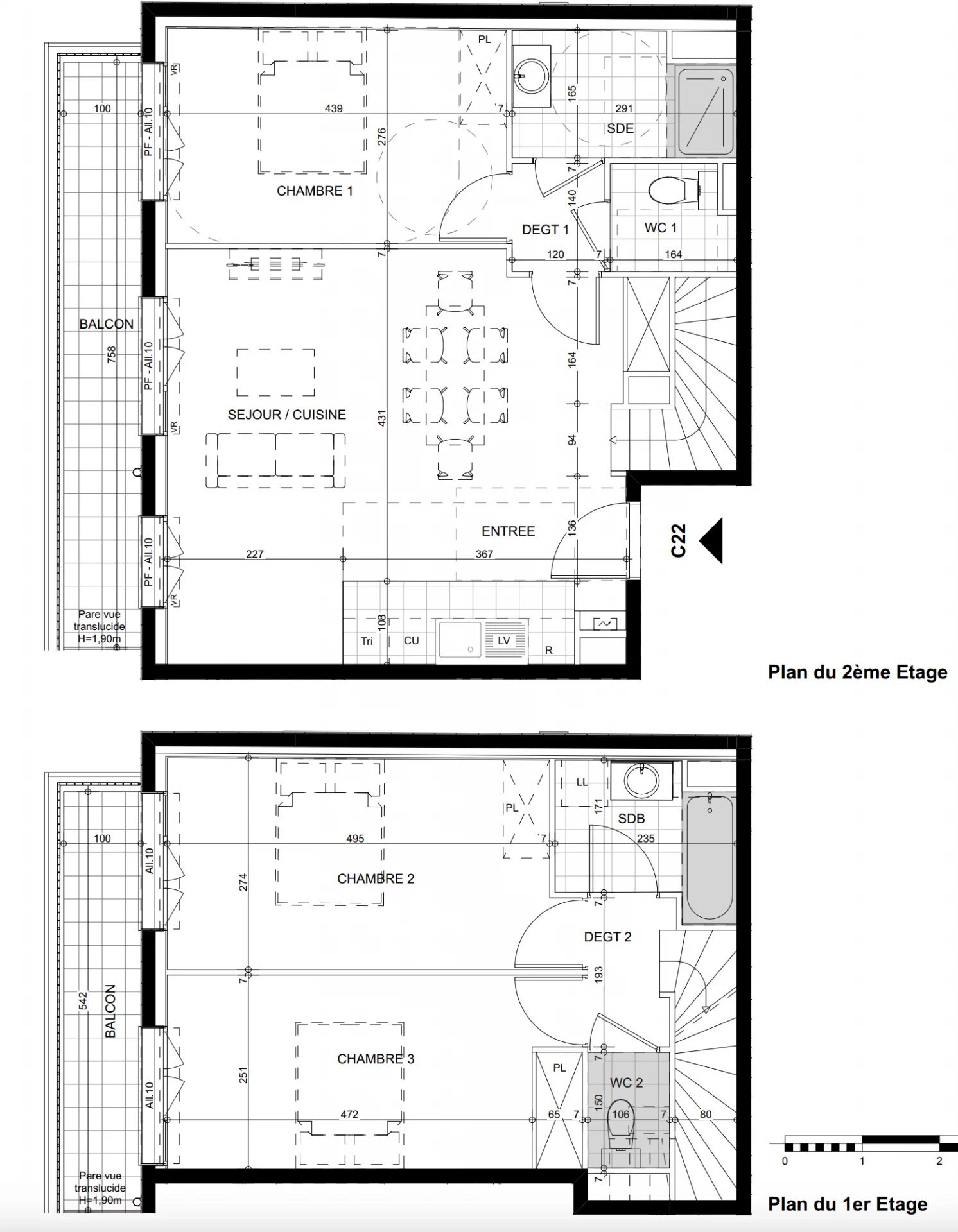
Bien situé au Kremlin-Bicêtre, ce bien est composé :

d'une entrée, d'une pièce de vie séjour/cuisine de 29,54m2, d'une chambre, une salle de douche et des toilettes.

Une espace extérieur donnant sur le séjour et la chambre de plus de 7,5m2.

A l'étage : Deux chambres donnant également sur un espace extérieur, une salle de bain et des toilettes.

Dans une résidence moderne et bien équipée.

Pour plus de renseignement, merci de nous contacter directement.
Mis à jour le 24/03/2026

Relevés techniques

DPE : 50
A
B
C
D
E
F
G
GES : 5
A
B
C
D
E
F
G
Diagnostic réalisé le: 10/04/2025

Production eau chaude
Chaudière

Production chauffage


Les informations sur les risques auxquels ce bien est exposé sont disponibles sur le site Géorisques : www.georisques.gouv.fr

État et prestations

État général
Excellent

Détails des surfaces

Espace
Carrez
Au sol
Entrée
2.11 m²
0 m²

Séjour / cuisine
29.59 m²
0 m²

Chambre
12.19 m²
0 m²

Chambre 1
13.91 m²
0 m²

Chambre 2
13.47 m²
0 m²

Salle de bain
4.04 m²
0 m²

Salle de douche
4.41 m²
0 m²

Dégagement
1.68 m²
0 m²

Dégagement
1.97 m²
0 m²

Balcon
5.41 m²
0 m²

Balcon
7.56 m²
0 m²

Total
96.34 m²
0.00 m²