265 000 €
6 326 € / m²

📍 Appartement 2 pièces – Quartier recherché proche métro & gare

📍 Appartement 2 pièces – Quartier recherché proche métro & gare

92600 Asnières-sur-Seine
2 pièces 41.89 m2
Référence : 92ASNIEARDEC02-P
265 000 €
6 326 € / m²

Conditions de vente

265 000 €

Taxe foncière
Non renseignée

Informations

1 chambre
Étage : 2
1 salle d'eau
Bâtiment de : 6 étages
Mono-propriété

Description

À découvrir sans tarder : beau 2 pièces situé dans un immeuble moderne, au cœur d’un secteur dynamique et recherché, à proximité immédiate de la ligne 13, de la gare, des écoles et des commerces.

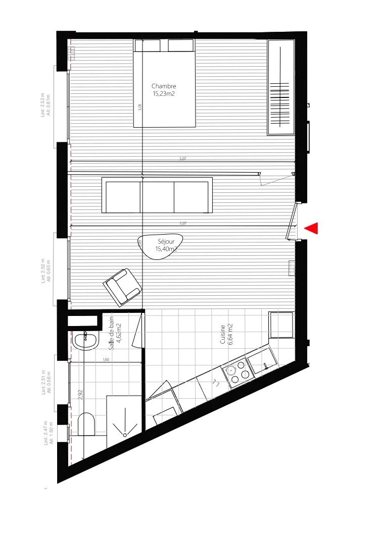
Ce bien se compose de :

Une cuisine indépendante de 6,64 m²,

Un séjour lumineux de 15,40 m²,

Une spacieuse chambre de 15,40 m²,

Une salle de bain de 4,62 m².

Une cave complète ce bien pour un confort de rangement optimal.

💡 À savoir : Un devis de travaux chiffré à 45 000 € a été établi et est à ajouter au prix de vente. Ce montant est potentiellement déductible fiscalement pour les investisseurs, une belle opportunité pour optimiser votre acquisition.

🚗 Possibilité d’acquérir une place de parking en supplément.

📞 Pour plus d’informations ou pour organiser une visite, contactez-nous dès maintenant. Veuillez trouver ci-joint la vidéo en lien afin de découvrir l'environnement et différents biens : https://youtube.com/watch?v=qPqWmgiC60I
Mis à jour le 24/03/2026

Relevés techniques

Vitrage
Double

DPE : 197
A
B
C
D
E
F
G
GES : 26
A
B
C
D
E
F
G
Diagnostic réalisé le: 29/04/2025

Production eau chaude
Chaudière

Production chauffage


Les informations sur les risques auxquels ce bien est exposé sont disponibles sur le site Géorisques : www.georisques.gouv.fr

État et prestations

État général
Excellent

Détails des surfaces

Espace
Carrez
Au sol
Cuisine
6.64 m²
0 m²

Séjour
15.4 m²
0 m²

Chambre
15.23 m²
0 m²

Salle de bain
4.62 m²
0 m²

Total
41.89 m²
0.00 m²