933 000 €
8 508 € / m²

Appartement T5 Duplex à Courbevoie

Appartement T5 Duplex à Courbevoie

92400 Courbevoie
5 pièces 109.66 m2
Référence : 92COURBKAUFKOYC91
933 000 €
8 508 € / m²

Conditions de vente

933 000 €

Taxe foncière
Non renseignée

Informations

4 chambres
Étage : 9
2 salles d'eau
2 WCs
Bâtiment de : 9 étages
Terrasse
Ascenseur
Mono-propriété

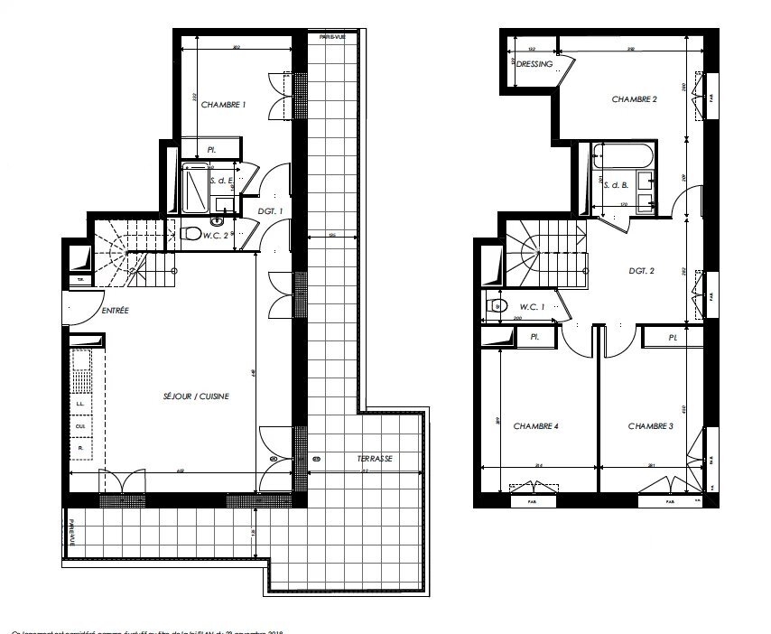
Description

Idéalement situé à Courbevoie, cet appartement duplex T5 se compose :

d'un grand séjour de 33,19 m2
de 4 belles chambres
d'une salle de bain et d'une salle de douche
et d'une grande terrasse de plus de 38m2.

Ce bien est vendu avec une place de parking et une cave.

Pour plus d'information, merci de nous contacter directement, plusieurs appartements sont disponibles.
Mis à jour le 24/03/2026

Relevés techniques

DPE : 106
A
B
C
D
E
F
G
GES : 3
A
B
C
D
E
F
G
Diagnostic réalisé le: 24/06/2025

Production eau chaude

Production chauffage


Les informations sur les risques auxquels ce bien est exposé sont disponibles sur le site Géorisques : www.georisques.gouv.fr

État et prestations

État général
Excellent

Détails des surfaces

Espace
Carrez
Au sol
Entrée
2.75 m²
0 m²

Séjour / cuisine
33.19 m²
0 m²

Chambre
11.33 m²
0 m²

Chambre 1
13.57 m²
0 m²

Chambre 2
12.62 m²
0 m²

Chambre 3
13.48 m²
0 m²

Dressing
1.85 m²
0 m²

Salle de bain
3.43 m²
0 m²

Salle de douche
2.29 m²
0 m²

Dégagement
1.93 m²
0 m²

Dégagement
9.74 m²
0 m²

Terrasse
38 m²
0 m²

Total
144.18 m²
0.00 m²