1 495 600 €
11 216 € / m²

APPARTEMENT T5 - 133,34M2

APPARTEMENT T5 - 133,34M2

92380 Garches
5 pièces 133.34 m2
Référence : 92GARCLNCHIPPOB401
1 495 600 €
11 216 € / m²

Conditions de vente

1 495 600 €

Taxe foncière
Non renseignée

Informations

4 chambres
Étage : 4
2 salles d'eau
3 WCs
Bâtiment de : 4 étages
Terrasse
Ascenseur
Mono-propriété

Description

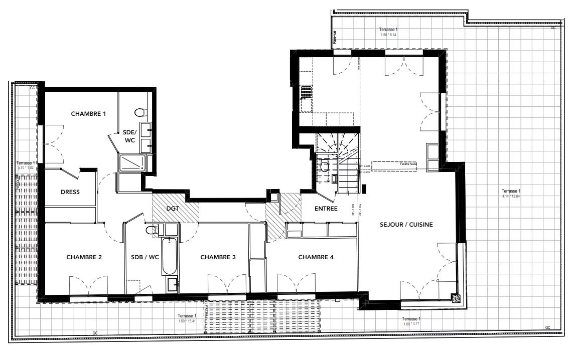
A GARCHES, CET APPARTEMENT, SE COMPOSE :
D'UNE ENTREE DE 6,59M2, D'UN SEJOUR/CUISINE DE 50,78M2, DE 4 CHAMBRES, D'UN DRESSING, D'UNE SALLE D'EAU ET D'UNE SALLE DE BAIN ET 2 TERRASSES RESPECTIVEMENT DE 108,96M2 ET L'AUTRE DE 62,47M2.

CE BIEN RARE EST VENDU AVEC 2 PLACES DE PARKING.

DANS UN IMMEUBLE MODERNE ET À PROXIMITÉ DES ÉCOLES ET DES TRANSPORTS.

POUR PLUS D'INFORMATION, MERCI DE BIEN VOULOIR NOUS CONTACTER.
Mis à jour le 24/03/2026

Relevés techniques

Vitrage
Double

DPE : 50
A
B
C
D
E
F
G
GES : 5
A
B
C
D
E
F
G
Diagnostic réalisé le: 29/04/2025

Production eau chaude
Chaudière

Production chauffage


Les informations sur les risques auxquels ce bien est exposé sont disponibles sur le site Géorisques : www.georisques.gouv.fr

État et prestations

État général
Excellent

Détails des surfaces

Espace
Carrez
Au sol
Entrée
6.59 m²
0 m²

Séjour / cuisine
50.78 m²
0 m²

Chambre
12.02 m²
0 m²

Chambre 1
13.05 m²
0 m²

Chambre 2
10.74 m²
0 m²

Chambre 3
11.46 m²
0 m²

Dégagement
8.31 m²
0 m²

Dressing
3.6 m²
0 m²

Salle de bain
6.9 m²
0 m²

Salle de douche
5.18 m²
0 m²

Dégagement
3.33 m²
0 m²

Terrasse
108.96 m²
0 m²

Terrasse
62.47 m²
0 m²

Total
303.39 m²
0.00 m²