299 900 €
4 899 € / m²

Appartement T3 - 61,22m2

Appartement T3 - 61,22m2

94310 Orly
3 pièces 61.22 m2
Référence : 94ORLSPIG201
299 900 €
4 899 € / m²

Conditions de vente

299 900 €

Taxe foncière
Non renseignée

Informations

2 chambres
Étage : 2
1 salle d'eau
1 WC
Bâtiment de : 4 étages
Ascenseur
Mono-propriété

Description

Idéalement placé, à 10 minutes à pied du Vieil-Orly, et à proximité des commerces, écoles, transports.

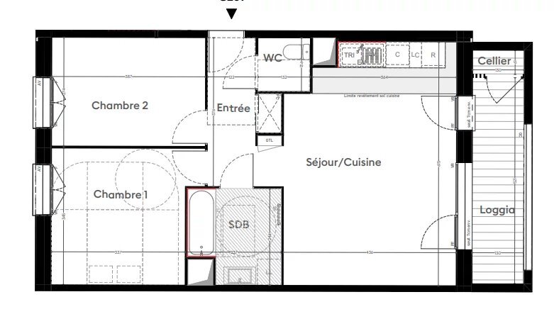
Cet appartement se compose :

- d'une entrée de 5,25m2,
- d'un séjour/cuisine de 26,15m2,
- de 2 chambres,
- d'une belle salle de bains de 5,27m2
- d'une loggia de 6,77m2 et d'un cellier.

Cet appartement est vendu avec une place de parking.

Pour plus d'information, merci de nous directement.
Mis à jour le 24/03/2026

Relevés techniques

Vitrage
Double

DPE : 106
A
B
C
D
E
F
G
GES : 3
A
B
C
D
E
F
G
Diagnostic réalisé le: 15/07/2025

Production eau chaude
Chaudière

Production chauffage
Individuel Électrique


Les informations sur les risques auxquels ce bien est exposé sont disponibles sur le site Géorisques : www.georisques.gouv.fr

État et prestations

État général
Excellent

Détails des surfaces

Espace
Carrez
Au sol
Entrée
5.25 m²
0 m²

Séjour / cuisine
26.15 m²
0 m²

Chambre
12.13 m²
0 m²

Chambre 1
10.63 m²
0 m²

Salle de bain
5.27 m²
0 m²

Cellier
0.79 m²
0 m²

Total
60.22 m²
0.00 m²