353 780 €
5 233 € / m²

APPARTEMENT T3 - 67,60M2 AVEC LOGGIA

APPARTEMENT T3 - 67,60M2 AVEC LOGGIA

92230 Gennevilliers
3 pièces 67.6 m2
Référence : 92GENPRIMATERRB101
353 780 €
5 233 € / m²

Conditions de vente

353 780 €

Taxe foncière
Non renseignée

Informations

2 chambres
Étage : 3
1 salle d'eau
1 WC
Bâtiment de : 7 étages
Mono-propriété

Description

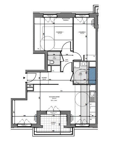
Idéalement situé à Gennevilliers, cet appartement se compose :

- d'une entrée de 4,6m2,
- d'un séjour/cuisine de 29,6m2
- d'une chambre de 13,70m2
- d'une chambre de 10,20m2
- d'une salle de bain de 4,9m2
- de dégagement de 2,6m2
- de toilettes de 1,9m2.

Dans une immeuble moderne et à proximité :
Au pied du tramway 1 (station Parc des Chanteraines),
A 6 min à pied de la gare RER C
A 2 min à pied d’une future école,
A 5 min du centre commercial et de l’hypermarché.

Pour plus d'information, merci de nous contacter directement.
Mis à jour le 24/03/2026

Relevés techniques

Vitrage
Double

DPE : 51
A
B
C
D
E
F
G
GES : 7
A
B
C
D
E
F
G
Diagnostic réalisé le: 23/05/2025

Production eau chaude
Chaudière

Production chauffage


Les informations sur les risques auxquels ce bien est exposé sont disponibles sur le site Géorisques : www.georisques.gouv.fr

Détails des surfaces

Espace
Carrez
Au sol
Entrée
4.6 m²
0 m²

Séjour / cuisine
29.6 m²
0 m²

Chambre
13.7 m²
0 m²

Chambre 1
10.2 m²
0 m²

Dégagement
2.6 m²
0 m²

Salle de bain
4.9 m²
0 m²

Total
65.60 m²
0.00 m²