192 000 €
6 154 € / m²

Appartement T1 de 32,10M2 avec Balcon à Villiers sur Marne

Appartement T1 de 32,10M2 avec Balcon à Villiers sur Marne

94350 Villiers-sur-Marne
1 pièce 31.2 m2
Référence : 94VILMARSIS301
192 000 €
6 154 € / m²

Conditions de vente

192 000 €

Taxe foncière
Non renseignée

Informations

Étage : 3
1 salle d'eau
Bâtiment de : 16 étages
Ascenseur
Balcon
Local à vélo
Mono-propriété

Description

Idéalement situé, ce bâtiment est au porte de la nouvelle ligne de métro 15 et du RER E, traversé par un vaste jardin métropolitain.

L'ensemble dans une ambiance conviviale et verdoyante, et dans un quartier d'avenir.

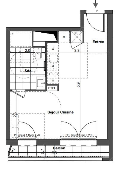
L'appartement proposé se compose :

- d'une entrée de 2m2,
- d'un séjour/cuisine de 23,60m3,
- d'une salle de douche de 5,6m2,
- un espace extérieur avec un balcon de 3,20m2

Cet immeuble est à proximité de nombreuses écoles et commerces.

Pour plus d'information, merci de nous contacter directement.
Mis à jour le 24/03/2026

Relevés techniques

Vitrage
Double

DPE : 106
A
B
C
D
E
F
G
GES : 3
A
B
C
D
E
F
G
Diagnostic réalisé le: 04/07/2025

Production eau chaude

Production chauffage
Collectif Pompe à chaleur


Les informations sur les risques auxquels ce bien est exposé sont disponibles sur le site Géorisques : www.georisques.gouv.fr

État et prestations

État général
Excellent

Détails des surfaces

Espace
Carrez
Au sol
Entrée
2 m²
0 m²

Séjour / cuisine
23.6 m²
0 m²

Salle de douche
5.6 m²
0 m²

Balcon
3.2 m²
0 m²

Total
34.40 m²
0.00 m²