389 000 €
6 615 € / m²

Appartement T3 à Montmorency

Appartement T3 à Montmorency

95160 Montmorency
3 pièces 58.81 m2
Référence : 95MONTMOMARIA306
389 000 €
6 615 € / m²

Conditions de vente

389 000 €

Taxe foncière
Non renseignée

Informations

1 chambre
Étage : 3
1 salle d'eau
Bâtiment de : 4 étages
Ascenseur
Mono-propriété

Description

À seulement 10 km des portes de Paris, Montmorency est reconnue pour son cadre agréable, ses espaces naturels et son atmosphère conviviale.

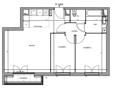
Cet appartement se compose :

d'un séjour/cuisine de 28m2,
de deux chambres,
d'une salle de bain
d'une terrasse de plus de 3m2

Proche des commerces et écoles, à 50m de la gare. Le prix affiché est calculé avec une remise.

Pour plus d'information, merci de nous contacter directement.
Mis à jour le 24/03/2026

Relevés techniques

Vitrage
Double

DPE : 107
A
B
C
D
E
F
G
GES : 7
A
B
C
D
E
F
G
Diagnostic réalisé le: 19/09/2025

Production eau chaude

Production chauffage
Individuel Gaz


Les informations sur les risques auxquels ce bien est exposé sont disponibles sur le site Géorisques : www.georisques.gouv.fr

État et prestations

État général
Excellent

Détails des surfaces

Espace
Carrez
Au sol
Séjour
24.85 m²
0 m²

Chambre
11.69 m²
0 m²

Salle de bain
5.23 m²
0 m²

Total
41.77 m²
0.00 m²