485 000 €
10 348 € / m²

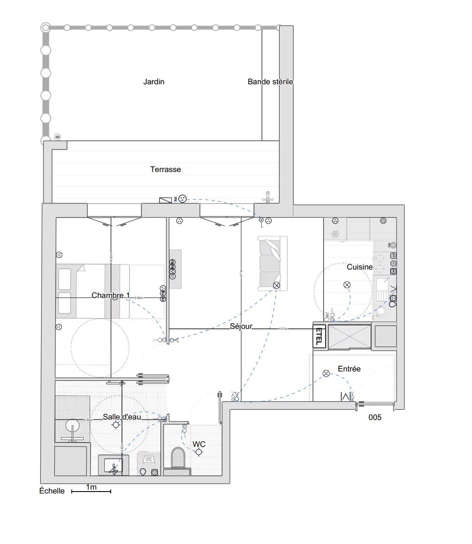
Appartement T2 46,87m2

Appartement T2 46,87m2

92250 La Garenne-Colombes
2 pièces 46.87 m2
Référence : 92GARPRIMCASSI005
485 000 €
10 348 € / m²

Conditions de vente

485 000 €

Taxe foncière
Non renseignée

Informations

1 chambre
Étage : RDC
1 salle d'eau
1 WC
Bâtiment de : 5 étages
Terrasse
Jardin
Ascenseur
Mono-propriété

Description

Appartement très bien situé à la Garenne Colombes, composé d'une entrée et d'un séjour de 18,79m2, d'une chambre de 11,60m2, d'une salle de bain de 5,99m2.

Un espace extérieur complète cet appartement, avec une terrasse de 9,22m2 et d'un jardin de 16m2, donnant dans le séjour et la chambre.

Dans une immeuble moderne, idéalement situé sur La Garenne Colombes.

Le bien est vendu avec une place de parking.

Pour plus d'information, merci de bien vouloir nous contacter.
Mis à jour le 24/03/2026

Relevés techniques

Vitrage
Double

DPE : 50
A
B
C
D
E
F
G
GES : 5
A
B
C
D
E
F
G
Diagnostic réalisé le: 10/04/2025

Production eau chaude
Chaudière

Production chauffage


Les informations sur les risques auxquels ce bien est exposé sont disponibles sur le site Géorisques : www.georisques.gouv.fr

État et prestations

État général
Excellent

Détails des surfaces

Espace
Carrez
Au sol
Entrée
3.52 m²
0 m²

Séjour
18.79 m²
0 m²

Cuisine
4.99 m²
0 m²

Chambre
11.6 m²
0 m²

Salle de douche
5.99 m²
0 m²

Terrasse
9.22 m²
0 m²

Jardin
16.01 m²
0 m²

Total
70.12 m²
0.00 m²