302 250 €
6 228 € / m²

Spécial investisseur - Appartement T2 à Clichy

Spécial investisseur - Appartement T2 à Clichy

92110 Clichy
2 pièces 48.53 m2
Référence : 87346
302 250 €
6 228 € / m²

Conditions de vente

302 250 €

Taxe foncière
Non renseignée

Informations

1 chambre
Étage : 2
1 salle d'eau
Bâtiment de : 7 étages
Ascenseur
Balcon
Mono-propriété

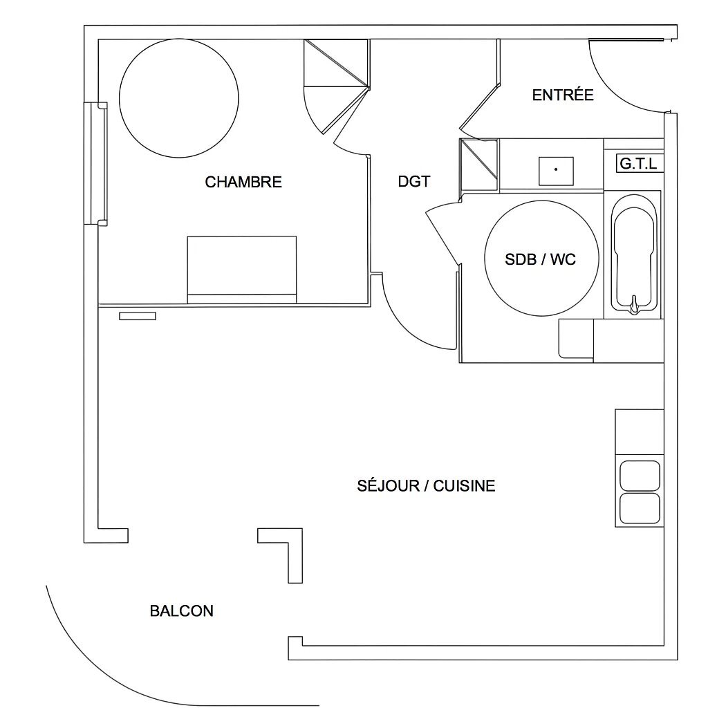
Description

Bien idéalement placé au coeur de Clichy, à proximité des transports et commerces. A seulement 200 mètres de Paris 17ème.

Ce bien en nue propriété se compose :

- d'une entrée,
- d'un séjour/cuisine de 25m2,
- d'une belle chambre de 11m2,
- d'une salle de bains,
- et d'un balcon de plus de 8m2.

Pour plus d'information, merci de nous contacter directement.
Mis à jour le 24/03/2026

Relevés techniques

DPE : 107
A
B
C
D
E
F
G
GES : 7
A
B
C
D
E
F
G
Diagnostic réalisé le: 03/11/2025

Production eau chaude
Chaudière

Production chauffage
Individuel Électrique


Les informations sur les risques auxquels ce bien est exposé sont disponibles sur le site Géorisques : www.georisques.gouv.fr

État et prestations

État général
Excellent

Détails des surfaces

Espace
Carrez
Au sol
Entrée
3.51 m²
0 m²

Séjour / cuisine
24.99 m²
0 m²

Chambre
11 m²
0 m²

Salle de bain
5.21 m²
0 m²

Dégagement
3.72 m²
0 m²

Balcon
8.77 m²
0 m²

Total
57.20 m²
0.00 m²