246 200 €
6 012 € / m²

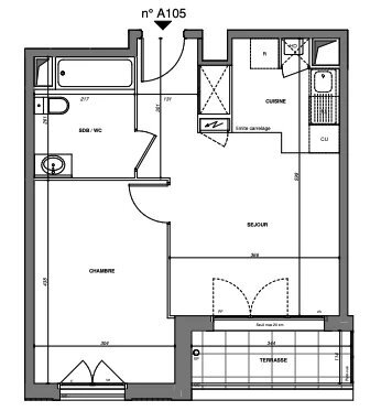
Appartement T2 avec terrasse

Appartement T2 avec terrasse

94500 Champigny-sur-Marne
2 pièces 40.95 m2
Référence : 94CHAMPMARIA105
246 200 €
6 012 € / m²

Conditions de vente

246 200 €

Taxe foncière
Non renseignée

Informations

1 chambre
Étage : 1
1 salle d'eau
1 WC
Bâtiment de : 5 étages
Terrasse
Ascenseur
Mono-propriété

Description

A seulement 12km à l'est de la capitale, Champigny-sur- Marne, dans un cadre verdoyant.

Cet appartement se compose :
d'un séjour/cuisine de plus de 22m2
d'une chambre de plus de 12m2
d'une grande salle de bain de plus de 5m2
et d'une terrasse donnant directement sur le séjour.

Pour plus d'information, merci de nous contacter directement.
Mis à jour le 24/03/2026

Relevés techniques

Vitrage
Double

DPE : 107
A
B
C
D
E
F
G
GES : 7
A
B
C
D
E
F
G
Diagnostic réalisé le: 19/09/2025

Production eau chaude
Chaudière

Production chauffage
Individuel Électrique


Les informations sur les risques auxquels ce bien est exposé sont disponibles sur le site Géorisques : www.georisques.gouv.fr

État et prestations

État général
Excellent

Détails des surfaces

Espace
Carrez
Au sol
Séjour / cuisine
22.78 m²
0 m²

Chambre
12.83 m²
0 m²

Salle de bain
5.34 m²
0 m²

Terrasse
3.72 m²
0 m²

Total
44.67 m²
0.00 m²