249 000 €
9 464 € / m²

STUDIO DE PLUS DE 26M2 AU PIED DU METRO À ASNIERES

STUDIO DE PLUS DE 26M2 AU PIED DU METRO À ASNIERES

92600 Asnières-sur-Seine
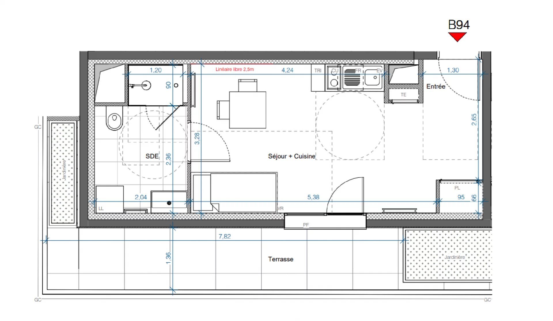
1 pièce 26.31 m2
Référence : 92ASNBOUYARCB94
249 000 €
9 464 € / m²

Conditions de vente

249 000 €

Taxe foncière
Non renseignée

Informations

Étage : 9
1 salle d'eau
1 douche
1 WC
Bâtiment de : 15 étages
Terrasse
Ascenseur
Mono-propriété
Construit Après 1990

Description

Idéalement placé à 3 minutes à pied de la station de métro ligne 13 et du Tramway. Ecoles et commerces à deux pas de cet immeuble.

Cet appartement se compose :
- d'une entrée,
- d'un séjour/cuisine,
- d'une salle de douche,
- et d'une belle terrasse de plus de 10m2

Pour plus d'information, merci de nous contacter directement.
Mis à jour le 26/04/2026

Relevés techniques

DPE : 107
A
B
C
D
E
F
G
GES : 7
A
B
C
D
E
F
G
Diagnostic réalisé le: 27/01/2026

Production eau chaude
Individuel Gaz

Production chauffage
Individuel Gaz


Les informations sur les risques auxquels ce bien est exposé sont disponibles sur le site Géorisques : www.georisques.gouv.fr

État et prestations

État général
Excellent

Cuisine
Prestations
État
Salles de bain
Prestations
État
Sol(s)
Prestations
État
Fenêtres
Prestations
État

Détails des surfaces

Espace
Carrez
Au sol
Entrée
1.25 m²
0 m²

Salle de douche
6 m²
0 m²

Séjour / cuisine
19.06 m²
0 m²

Terrasse
0 m²
0 m²

Total
26.31 m²
0.00 m²