439 000 €
6 682 € / m²

Appartement T3 à Nanterre

Appartement T3 à Nanterre

92000 Nanterre
3 pièces 65.7 m2
Référence : 92NANTCONLINC33
439 000 €
6 682 € / m²

Conditions de vente

439 000 €

Taxe foncière
Non renseignée

Informations

2 chambres
Étage : 3
1 salle d'eau
1 douche
1 baignoire
1 WC
Bâtiment de : 5 étages
Terrasse
Mono-propriété

Description

Idéalement placé à proximité des transports, commerces et écoles. Dans une ville en développement avec l'arrivée du RER E et de la ligne 15.

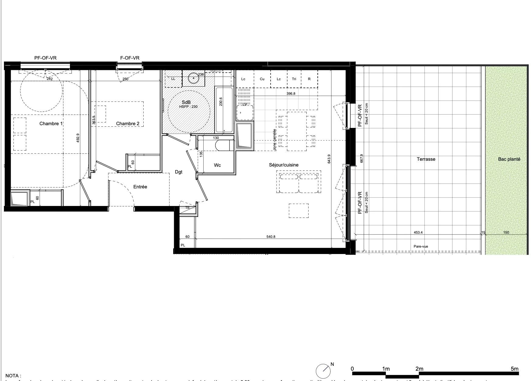
Cet appartement se compose :
- d'une entrée,
- d'un séjour/cuisine de 29m2,
- de deux chambres,
- d'une salle de bain,
- et d'une grande terrasse de plus de 30m2

Pour plus d'information, merci de nous contacter directement.
Mis à jour le 31/03/2026

Relevés techniques

DPE : 107
A
B
C
D
E
F
G
GES : 7
A
B
C
D
E
F
G
Diagnostic réalisé le: 30/01/2026

Production eau chaude
Individuel Gaz

Production chauffage
Individuel Gaz


Les informations sur les risques auxquels ce bien est exposé sont disponibles sur le site Géorisques : www.georisques.gouv.fr

État et prestations

État général
Excellent

Cuisine
Prestations
État
Salles de bain
Prestations
État
Sol(s)
Prestations
État
Fenêtres
Prestations
État

Détails des surfaces

Espace
Carrez
Au sol
Entrée
3.1 m²
0 m²

Séjour / cuisine
29.2 m²
0 m²

Chambre 1
13.4 m²
0 m²

Chambre 2
9.1 m²
0 m²

Salle de bain
6 m²
0 m²

Dégagement
3.1 m²
0 m²

WC
1.8 m²
0 m²

Terrasse
0 m²
40.3 m²

Total
65.70 m²
40.30 m²