328 000 €
7 533 € / m²

Appartement T2 de 43,54 à Bois Colombes

Appartement T2 de 43,54 à Bois Colombes

92270 Bois-Colombes
2 pièces 43.54 m2
Référence : 92BOISCOLENO102
328 000 €
7 533 € / m²

Conditions de vente

328 000 €

Taxe foncière
Non renseignée

Informations

1 chambre
Étage : 1
1 salle d'eau
1 WC
Bâtiment de : 8 étages
Terrasse
Mono-propriété

Description

Dans un écoquartier à Bois-Colombes, à proximité des commerces, des transports : gare et métro ligne 13 à moins de 10 minutes à pied.

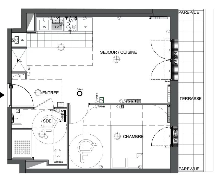
Dans une résidence sécurisée, cet appartement se compose :

- d'un séjour/cuisine de plus de 25m2,
- d'une chambre de plus de 12m2
- d'une salle d'eau de plus de 5m2
- et d'une terrasse de plus 9m2 donnant sur le séjour et sur la chambre.

Pour plus d'information, merci de nous contacter directement.
Mis à jour le 27/03/2026

Relevés techniques

DPE : 107
A
B
C
D
E
F
G
GES : 7
A
B
C
D
E
F
G
Diagnostic réalisé le: 20/01/2026

Production eau chaude
Individuel Gaz

Production chauffage
Individuel Gaz


Les informations sur les risques auxquels ce bien est exposé sont disponibles sur le site Géorisques : www.georisques.gouv.fr

État et prestations

État général
Excellent

Cuisine
Prestations
État
Salles de bain
Prestations
État
Sol(s)
Prestations
État
Fenêtres
Prestations
État

Détails des surfaces

Espace
Carrez
Au sol
Séjour / cuisine
25.53 m²
0 m²

Chambre 1
12.46 m²
0 m²

Salle de douche
5.55 m²
0 m²

Terrasse
0 m²
9.23 m²

Total
43.54 m²
9.23 m²