451 000 €
7 581 € / m²

Appartement T3 de 59m2 à Bois Colombes

Appartement T3 de 59m2 à Bois Colombes

92270 Bois-Colombes
3 pièces 59.49 m2
Référence : 92BOISCOLENO604
451 000 €
7 581 € / m²

Conditions de vente

451 000 €

Taxe foncière
Non renseignée

Informations

2 chambres
Étage : 6
1 salle d'eau
1 douche
1 WC
Bâtiment de : 8 étages
Terrasse
Ascenseur
Mono-propriété

Description

Dans un écoquartier à Bois-Colombes, à proximité des commerces, des transports : gare et métro ligne 13 à moins de 10 minutes à pied.

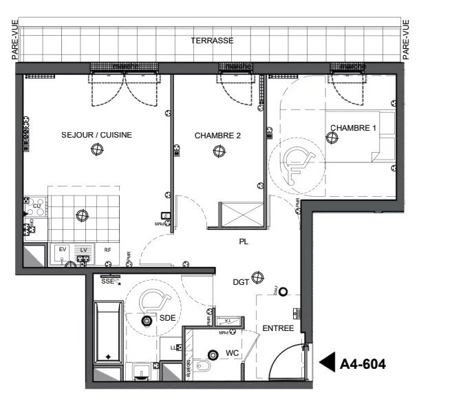
Dans une résidence sécurisée, cet appartement se compose :

- d'une entrée de plus de 9m2
- d'un séjour/cuisine de 20m2,
- de 2 chambres,
- d'une salle d'eau
- et d'une terrasse de plus 9m2 donnant sur le séjour et sur les 2 chambres.

Pour plus d'information, merci de nous contacter directement.
Mis à jour le 26/03/2026

Relevés techniques

DPE : 107
A
B
C
D
E
F
G
GES : 7
A
B
C
D
E
F
G
Diagnostic réalisé le: 20/01/2026

Production eau chaude
Individuel Gaz

Production chauffage
Individuel Gaz


Les informations sur les risques auxquels ce bien est exposé sont disponibles sur le site Géorisques : www.georisques.gouv.fr

État et prestations

État général
Excellent

Cuisine
Prestations
État
Salles de bain
Prestations
État
Sol(s)
Prestations
État
Fenêtres
Prestations
État

Détails des surfaces

Espace
Carrez
Au sol
Entrée
9.15 m²
0 m²

Séjour / cuisine
19.55 m²
0 m²

Chambre 1
12.14 m²
0 m²

Chambre 2
9.65 m²
0 m²

Dégagement
1.93 m²
0 m²

Salle de douche
7.07 m²
0 m²

Terrasse
0 m²
0 m²

Total
59.49 m²
0.00 m²