351 000 €
12 919 € / m²

Appartement T1 à Boulogne-Billancourt

Appartement T1 à Boulogne-Billancourt

92100 Boulogne-Billancourt
1 pièce 27.17 m2
Référence : 92BOULCATB209
351 000 €
12 919 € / m²

Conditions de vente

351 000 €

Taxe foncière
Non renseignée

Informations

Étage : 2
1 salle d'eau
1 douche
1 WC
Bâtiment de : 8 étages
Ascenseur
Mono-propriété

Description

Dans une résidence moderne et idéalement située à 2 minutes à pied de la ligne 9 du métro, des commerces et des écoles.

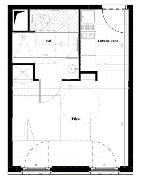
Cet appartement se compose :
- d'une entrée/cuisine,
- d'un séjour,
- d'une salle de douche.

Pour plus d'information, merci de nous contacter directement.
Mis à jour le 07/05/2026

Relevés techniques

Traversant
Non
Vitrage
Double

DPE : 107
A
B
C
D
E
F
G
GES : 7
A
B
C
D
E
F
G
Diagnostic réalisé le: 24/02/2026

Production eau chaude
Individuel Gaz

Production chauffage
Individuel Gaz


Les informations sur les risques auxquels ce bien est exposé sont disponibles sur le site Géorisques : www.georisques.gouv.fr

État et prestations

État général
Excellent

Cuisine
Prestations
État
Salles de bain
Prestations
État
Sol(s)
Prestations
État
Fenêtres
Prestations
État

Détails des surfaces

Espace
Carrez
Au sol
Séjour
16.26 m²
0 m²

Cuisine
5.18 m²
0 m²

Salle de douche
5.73 m²
0 m²

Total
27.17 m²
0.00 m²