745 000 €
11 951 € / m²

Appartement T3 - 62,34m2 - Quartier Mairie

Appartement T3 - 62,34m2 - Quartier Mairie

92100 Boulogne-Billancourt
3 pièces 62.34 m2
Référence : 92BOUCATELPULS3.2
745 000 €
11 951 € / m²

Conditions de vente

745 000 €

Taxe foncière
Non renseignée

Informations

2 chambres
Étage : 3
2 salles d'eau
1 WC
Bâtiment de : 5 étages
Ascenseur
Mono-propriété

Description

Boulogne-Billancourt est une ville dynamique et agréable, alliant modernité et qualité de vie. Proche de Paris.

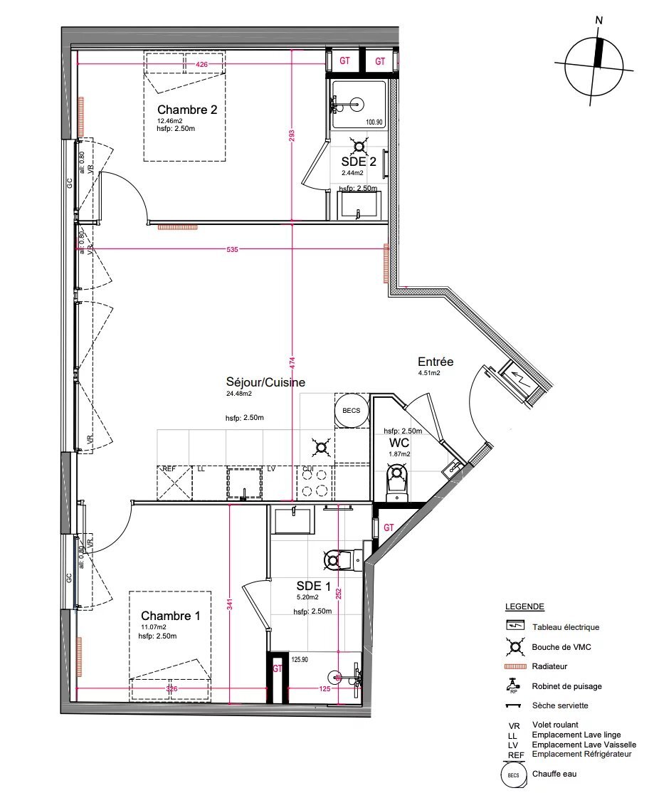
Cet appartement se compose :
- d'une entrée de 4,51m2
- d'un séjour/cuisine de 24,8m2
- de deux chambres
- de 2 salles de douches.

Pour plus d'information, merci de nous contacter directement.
Mis à jour le 25/03/2026

Équipements

Fibre

Relevés techniques

Traversant
Non
Vitrage
Double

DPE : 51
A
B
C
D
E
F
G
GES : 7
A
B
C
D
E
F
G
Diagnostic réalisé le: 23/05/2025

Production eau chaude
Individuel Électrique

Production chauffage
Individuel Électrique


Les informations sur les risques auxquels ce bien est exposé sont disponibles sur le site Géorisques : www.georisques.gouv.fr

État et prestations

État général
Excellent

Cuisine
Prestations
État
Salles de bain
Prestations
État
Sol(s)
Prestations
État
Fenêtres
Prestations
État

Détails des surfaces

Espace
Carrez
Au sol
Séjour / cuisine
24.8 m²
0 m²

Chambre 1
11.06 m²
0 m²

Salle de douche
5.2 m²
0 m²

Chambre 2
12.46 m²
0 m²

Salle de douche
2.44 m²
0 m²

Entrée
4.51 m²
0 m²

Total
60.47 m²
0.00 m²