295 900 €
7 084 € / m²

Appartement T2 à Montmorency

Appartement T2 à Montmorency

95160 Montmorency
2 pièces 41.77 m2
Référence : 95MONTMOMARIA109
295 900 €
7 084 € / m²

Conditions de vente

295 900 €

Taxe foncière
Non renseignée

Informations

1 chambre
Étage : 1
1 salle d'eau
Bâtiment de : 4 étages
Ascenseur
Mono-propriété

Description

À seulement 10 km des portes de Paris, Montmorency est reconnue pour son cadre agréable, ses espaces naturels et son atmosphère conviviale.

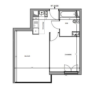
Cet appartement se compose :

d'un séjour/cuisine de 25m2,
d'une chambre de plus de 11m2
et d'une salle de bain de plus de 5m2

Proche des commerces et écoles, à 50m de la gare. Le prix affiché est calculé avec une remise.

Pour plus d'information, merci de nous contacter directement.
Mis à jour le 24/03/2026

Relevés techniques

Vitrage
Double

DPE : 107
A
B
C
D
E
F
G
GES : 7
A
B
C
D
E
F
G
Diagnostic réalisé le: 19/09/2025

Production eau chaude
Chaudière

Production chauffage
Individuel Électrique


Les informations sur les risques auxquels ce bien est exposé sont disponibles sur le site Géorisques : www.georisques.gouv.fr

État et prestations

État général
Excellent

Détails des surfaces

Espace
Carrez
Au sol
Séjour
24.85 m²
0 m²

Chambre
11.69 m²
0 m²

Salle de bain
5.23 m²
0 m²

Total
41.77 m²
0.00 m²