271 000 €
10 578 € / m²

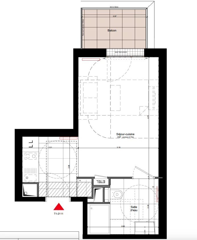
Appartement T1 de 25m2 à la Garenne Colombes

Appartement T1 de 25m2 à la Garenne Colombes

92250 La Garenne-Colombes
1 pièce 25.62 m2
Référence : 92LAGARENEX2111
271 000 €
10 578 € / m²

Conditions de vente

271 000 €

Taxe foncière
Non renseignée

Informations

Étage : 1
1 salle d'eau
1 douche
1 WC
Bâtiment de : 5 étages
Balcon
Mono-propriété

Description

Dans un quartier prisé de la Garenne Colombes, ce bien bénéficie d'un emplacement idéal à moins de 5 minutes des commerces, des écoles et des transports.

Cet appartement T1 se compose :

- d'un espace de vie de plus de 20m2,
- d'une belle salle d'eau de plus de 5m2
- et d'un espace extérieur de 4m2.

Pour plus d'information, merci de me contacter directement.
Mis à jour le 03/04/2026

Relevés techniques

Traversant
Non
Vitrage
Double

DPE : 107
A
B
C
D
E
F
G
GES : 7
A
B
C
D
E
F
G
Diagnostic réalisé le: 12/02/2026

Production eau chaude
Individuel Gaz

Production chauffage
Individuel Gaz


Les informations sur les risques auxquels ce bien est exposé sont disponibles sur le site Géorisques : www.georisques.gouv.fr

État et prestations

État général
Excellent

Cuisine
Prestations
État
Salles de bain
Prestations
État
Sol(s)
Prestations
État
Fenêtres
Prestations
État

Détails des surfaces

Espace
Carrez
Au sol
Séjour / cuisine
20.32 m²
0 m²

Salle de douche
5.3 m²
0 m²

Balcon
0 m²
4.35 m²

Total
25.62 m²
4.35 m²