618 000 €
6 808 € / m²

Appartement T5 de 90m2 à Bagnolet

Appartement T5 de 90m2 à Bagnolet

93170 Bagnolet
5 pièces 90.77 m2
Référence : 93BAGNCOG162
618 000 €
6 808 € / m²

Conditions de vente

618 000 €

Taxe foncière
Non renseignée

Informations

4 chambres
Étage : 6
2 salles d'eau
-1 douche
1 baignoire
1 WC
Bâtiment de : 6 étages
Terrasse
1 parking
Ascenseur
Balcon
Local à vélo
Mono-propriété

Description

Dans une ville dynamique, ce bien est idéalement placé avec un réseau d'écoles (maternelle, primaires, collèges et lycée) à moins de 10 minutes. Des commerces de proximités accessibles à pied. Et proche des transports : métro, tram, bus.

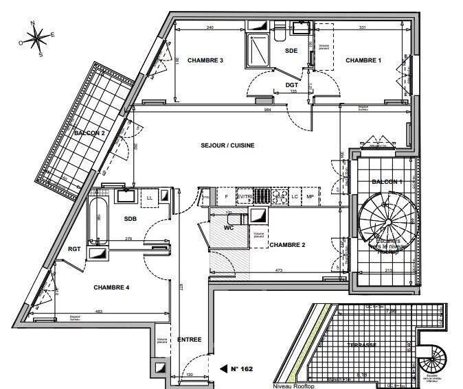
Ce studio se compose :

- d'une entrée,
- d'un séjour/cuisine de 29m2,
- de 4 chambres,
- d'une salle de bains et d'une salle de douche,
- de 2 balcons
- d'une terrasse de plus de 47m2

Ce bien est vendu avec une place de parking.

Le prix affiché est en TVA réduite nous contacter pour voir ensemble votre éligibilité.

Pour plus d'information, merci de nous contacter directement.
Mis à jour le 26/03/2026

Relevés techniques

Orientation
Est
Traversant
Non
Vitrage
Double

DPE : 107
A
B
C
D
E
F
G
GES : 7
A
B
C
D
E
F
G
Diagnostic réalisé le: 10/03/2026

Production eau chaude
Individuel Gaz

Production chauffage
Individuel Gaz


Les informations sur les risques auxquels ce bien est exposé sont disponibles sur le site Géorisques : www.georisques.gouv.fr

État et prestations

État général
Excellent

Cuisine
Prestations
État
Salles de bain
Prestations
État
Sol(s)
Prestations
État
Fenêtres
Prestations
État

Détails des surfaces

Espace
Carrez
Au sol
Entrée
9.29 m²
0 m²

Séjour / cuisine
29.02 m²
0 m²

Chambre 1
9.48 m²
0 m²

Chambre 2
9.71 m²
0 m²

Chambre 3
10.01 m²
0 m²

Chambre 4
10.09 m²
0 m²

Salle de bain
5.53 m²
0 m²

Placard
0.84 m²
0 m²

Salle de douche
3.35 m²
0 m²

WC
1.82 m²
0 m²

Placard
1.63 m²
0 m²

Balcon
0 m²
0 m²

Balcon
0 m²
0 m²

Terrasse
0 m²
0 m²

Total
90.77 m²
0.00 m²